Maison de munich


La maison de Munich c'est un grand logement des années 60idéalement placée en quartier pavillonnaire très calme.
Longtemps louée pour de la colocations, certains des aménagements de la maison ne conviennent pas aux nouveaux propriétaires qui y projettent le cocon familial idéal.




Avant




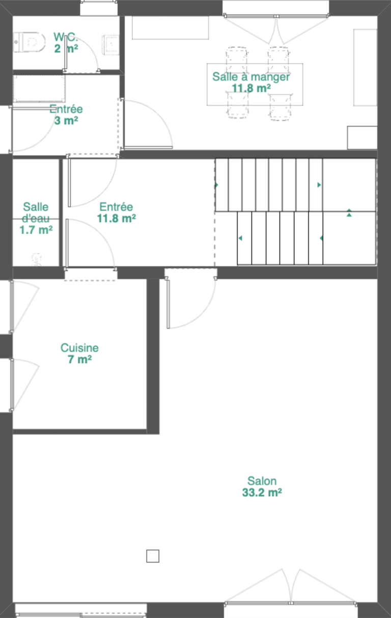
La maison n'a quasiment pas été rénovée depuis sa construction en 1965. La cuisine fermée est trop petite pour une famille de 4 personnes qui aime cuisiner, la salle à manger désuète n'est accessible depuis la cuisine qu'àprès avoir franchis trois portes, mais le volume du salon est prometteur et ouvre deux larges fenêtres sur le jardin.


Après
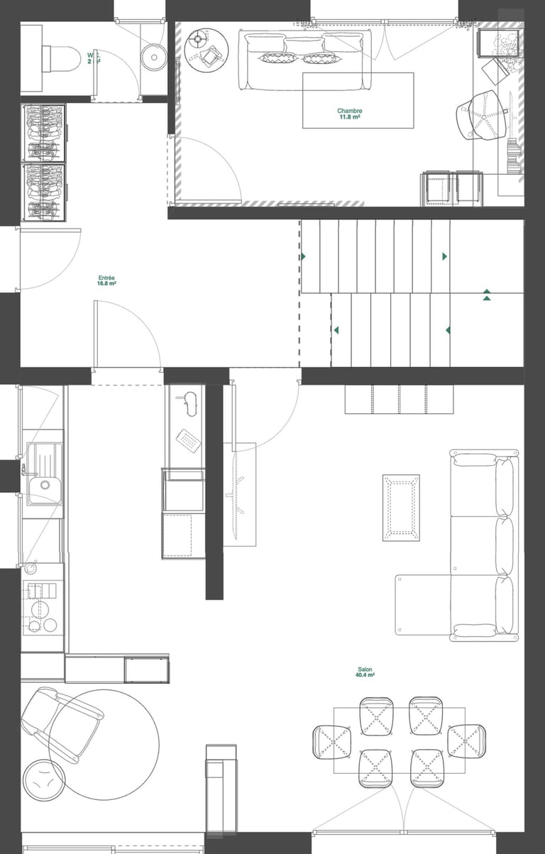
L'entrée trop petite et encombrée de porte est agrandie. L'ancienne salle d'eau du RDC est condamnée, la porte principale déplacée ce qui permet d'installer de vrais placards de rangements pour les manteaux.
La salle à manger beaucoup trop éloignée de la cuisine est remplacée par un bureau/chambre d'amis.
La cuisine s'agrandit en s'ouvrant sur le salon créant ainsi une pièce à vivre au volume confortable de 40m2 qui accueillera la table à manger


Le fil rouge de tout le projet sera "moderniser"
Du sol (avec l'installation d'un chauffage au sol) aux murs et plafonds entièrement rénovés et repeints, en passant par le changement de toutes les menuiseries, les clients ont vraiment pour objectif de faire revivre cette maison.




Plan de l'existant - RDC
Nouvelle implantation - RDC






Explication de l'implantation proposée :
Extraits du dossier de présentation








